Home
Projects
Current
411
Contact
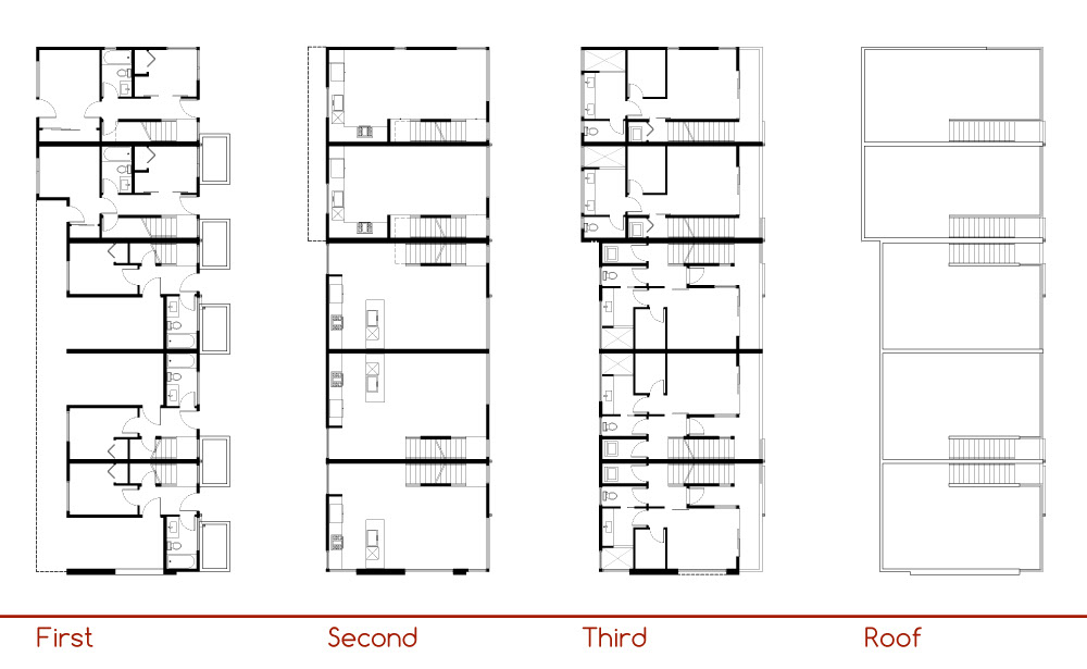
Blok2 Blok2
Home
Projects
Current
411
Contact

Quick: Other Homes

Krongarden A
California & Andover
The Nest
Dakota Live/Work
Blue Ballard
89th Live/Work
Perfect Row
Henry
Wilson 1
Whitman Four
↑Back to Top
Blok2 • 2025